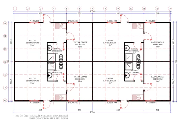
118 m² Prefabrik Acil Afet Binası

118 m² prefabrik acil afet binası, afet durumlarında hızlı ve güvenli bir şekilde kullanılabilen yapılardır. Bu yapılar, yangın, sel, deprem gibi afet durumlarında insanların barınması, sağlık hizmetleri alması, gıda ve su ihtiyaçlarının karşılanması gibi amaçlarla kullanılır. Prefabrik yapı malzemeleri kullanılarak üretilirler ve montajı oldukça hızlıdır. Genellikle kamplar, şantiyeler, sağlık merkezleri gibi alanlarda kullanılırlar. Ayrıca, prefabrik yapının çevre dostu olması ve geri dönüştürülebilir malzemelerden yapılmış olması da tercih sebepleri arasındadır.

Kategoriler:

Prefabrik acil afet binaları, doğal afetler gibi acil durumlarda hızlı bir şekilde inşa edilebilir ve kullanılabilir yapılar olarak tasarlanmıştır. 118 m² prefabrik acil afet binası, acil durumlarda kullanılabilecek ideal bir boyuttadır. Bu binalar, modüler yapıları sayesinde kolaylıkla kurulabilir ve ihtiyaca göre genişletilebilir. Ayrıca, dayanıklı ve güçlü malzemelerden yapıldığı için uzun süre kullanılabilirler. Bu yapılar, çelik çerçeveler ve yalıtımlı panellerden oluşur ve çelik çerçeveler, yapıya sağlam ve dayanıklı bir yapı sağlar.Prefabrik acil afet binaları, hızlı bir şekilde kurulabildiği için, acil durumlarda insanların güvenliğini sağlamak için çok önemlidir. Bu binalar, yangın, sel, deprem gibi acil durumlarda insanların barınması için kullanılabilir. Ayrıca, bu binalar, geçici olarak kullanılabileceği gibi uzun süreli barınma ihtiyacı olan bölgelerde de kullanılabilir. 118 m² prefabrik acil afet binası, hızlı bir şekilde kurulabilen, güçlü ve dayanıklı bir yapıdır.Bu binalar, doğal afetlerde insanların barınması için kullanılabilir ve insanların güvenliğini sağlayabilir. Ayrıca, bu binalar, modüler yapıları sayesinde ihtiyaca göre genişletilebilir ve uzun süre kullanılabilir. Bu binalar, prefabrik yapısı sayesinde ekonomik ve çevre dostu bir seçenek sunar. Ayrıca, kurulum süreci kısa olduğu için, afet bölgelerinde hızlı bir şekilde kullanıma hazır hale getirilebilirler. Bu da, insanların güvenliğini sağlamak için çok önemlidir.Sonuç olarak, 118 m² prefabrik acil afet binası, hızlı, güçlü ve dayanıklı bir yapıdır. Bu binalar, doğal afetlerde insanların barınması için kullanılabilir ve insanların güvenliğini sağlayabilir. Ayrıca, ekonomik ve çevre dostu bir seçenek sunarlar ve uzun süreli kullanım için idealdirler.