Prefabrik yapılar son yıllarda sağlık sektöründe de yaygın olarak kullanılmaya başlanmıştır. Özellikle kırsal kesimlerdeki sağlık ocakları için prefabrik yapılar oldukça avantajlıdır. Bu yapılar, hem ekonomik hem de hızlı bir şekilde yapılabilmesi nedeniyle tercih edilmektedir. 91 m² büyüklüğündeki bir prefabrik sağlık ocağı, çeşitli bölümlerden oluşabilir. Bu bölümler arasında bekleme salonu, muayene odaları, laboratuvar, eczane, depo gibi alanlar bulunabilir. Ayrıca, prefabrik yapıların tasarımı, müşteri ihtiyaçlarına göre özelleştirilebilir.Prefabrik sağlık ocakları, çevreye duyarlı bir yapıdır. Bu yapılar, çevreye zararlı atıkları minimuma indirerek, doğal kaynakların korunmasına da katkı sağlar. Ayrıca, prefabrik yapıların yapımı sırasında kullanılan malzemeler geri dönüştürülebilir özelliktedir. Prefabrik sağlık ocakları, kırsal kesimlerdeki sağlık hizmetlerinin yaygınlaştırılmasına da yardımcı olabilir. Bu yapılar, kırsal kesimlerdeki sağlık hizmetlerinin kalitesini arttırarak, insanların sağlık hizmetlerine daha kolay erişebilmelerini sağlar.Sonuç olarak, prefabrik yapılar sağlık sektöründe de yaygın olarak kullanılmaya başlanmıştır. Özellikle kırsal kesimlerdeki sağlık ocakları için prefabrik yapılar oldukça avantajlıdır. Bu yapılar, ekonomik, hızlı, çevreye duyarlı ve insanların sağlık hizmetlerine daha kolay erişebilmelerini sağlayan bir yapıdır.
91 m² Sağlık Ocağı
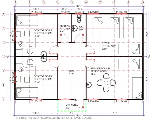
91 m² prefabrik sağlık ocağı, önceden üretilmiş ve montajı yapılmış bir tür prefabrik yapıdır. Bu yapılar, sağlık hizmetleri sunmak için kullanılan özelleştirilmiş binalardan biridir. Genellikle bir veya iki muayene odası, bekleme salonu ve eczane gibi bölümleri içerir. Bu yapılar, dayanıklı ve güvenli malzemelerden yapılmıştır ve uzun ömürlüdür. Ayrıca, prefabrik yapının modüler yapısı sayesinde, ihtiyaçlar değiştikçe kolayca genişletilebilir veya yeniden düzenlenebilir. 91 m² prefabrik sağlık ocağı, özellikle küçük yerleşim yerlerinde veya acil durumlarda hızlı bir şekilde inşa edilen sağlık tesisleri için uygundur.






