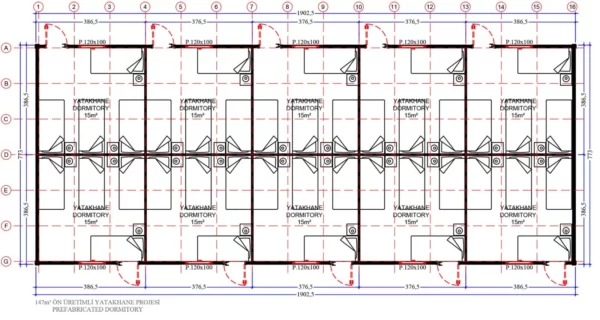
147 m² Prefabrik Yatakhane
147 m² prefabrik yatakhane, 125 m² prefabrik yatakhane ile benzer bir yapıya sahip olmakla birlikte daha geniş bir alana sahiptir. İçerisinde yatak odaları, banyo ve tuvaletler bulunur ve genellikle inşaat alanları, şantiyeler, askeri üsler ve kamp alanları gibi geçici konaklama ihtiyacı olan yerlerde kullanılır.






