148 m² Prefabrik Ofis
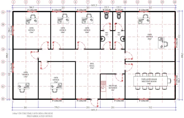
148 m² prefabrik ofis, biraz daha büyük bir işletmenin ihtiyaçlarını karşılamak için tasarlanmıştır. Genellikle 7-8 odalı ve bir toplantı odası ile donatılmıştır. Ayrıca, bir mutfak, tuvalet ve duş da içermektedir. Bu ofisler, orta ölçekli işletmelerin ihtiyaçlarına uygun olarak tasarlanmıştır.






