Tek katlı hafif çelik yapılar, günümüzde inşaat sektöründe en popüler yapı türlerinden biridir. Bu yapılar, hafif, dayanıklı, çevre dostu ve ekonomik olmaları nedeniyle birçok avantaj sunarlar. 190 m² tek katlı hafif çelik yapılar, genellikle orta büyüklükteki aileler veya işletmeler için idealdir. Bu yapılar, çelik profillerin çatı kirişleri, duvar çerçeveleri, kolonlar ve zemin çerçeveleri gibi farklı yapı elemanları kullanılarak inşa edilirler. Hafif çelik yapılar, betonarme ya da ahşap yapılarla karşılaştırıldığında daha hızlı bir şekilde inşa edilirler. Ayrıca, hafif çelik yapılar, daha az işçilik gerektirirler, bu nedenle de daha ekonomiktirler.Hafif çelik yapılar, aynı zamanda çevre dostudur. Çünkü, çelik üretimi sırasında sera gazı emisyonu daha azdır. Ayrıca, bu yapılar geri dönüştürülebilir malzemelerden yapılmıştır, bu da atık üretimini azaltır ve çevreye daha az zarar verir. 190 m² tek katlı hafif çelik yapılar, farklı amaçlar için kullanılabilirler. Örneğin, depo, garaj, ofis, mağaza, atölye, spor salonu veya yaşam alanı olarak kullanılabilirler. Bu yapılar, kullanım amacına göre özelleştirilebilir ve farklı tasarımlarla inşa edilebilirler.Hafif çelik yapılar, aynı zamanda dayanıklıdırlar. Çelik, yüksek mukavemetli bir malzemedir ve bu nedenle de hafif çelik yapılar, deprem, yangın, sel ve diğer doğal afetlere karşı daha dayanıklıdırlar. Ayrıca, bu yapılar, çelik kaplama sayesinde paslanmaya karşı da dirençlidirler. Sonuç olarak, 190 m² tek katlı hafif çelik yapılar, günümüzde popüler bir yapı türüdür. Bu yapılar, hafif, dayanıklı, çevre dostu ve ekonomik olmaları nedeniyle, birçok avantaj sunmaktadır. Bu yapılar, farklı amaçlar için kullanılabilirler ve özelleştirilebilirler. Hafif çelik yapılar, gelecekte de yapı sektöründe önemli bir rol oynamaya devam edecektir.
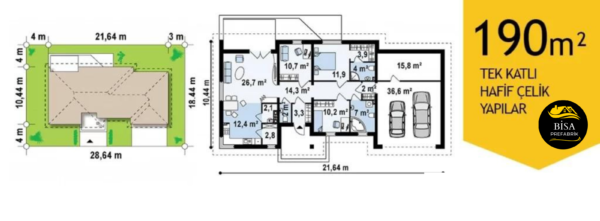
190 M² Tek Katlı Hafif Çelik Yapı
190 m² tek katlı hafif çelik yapılar, son yıllarda popülerlik kazanmış modern bir yapı türüdür. Bu tür yapılar, hafif çelik malzeme kullanarak tasarlanan ve inşa edilen yapılardır. Hafif çelik yapılar, geleneksel inşaat yöntemlerine göre daha hızlı ve ekonomik bir şekilde inşa edilebilirler. 190 m² tek katlı hafif çelik yapılar, ofis, depo, showroom, mağaza, kafe ve hatta konut olarak da kullanılabilirler. Bu tür yapılarda kullanılan malzemeler, dayanıklı ve kaliteli olup, yapıların uzun ömürlü olmasını sağlamaktadır. Hafif çelik yapılar, sadece ekonomik ve dayanıklı olmaları nedeniyle değil, aynı zamanda çevre dostu bir yapı malzemesi olarak da tercih edilmektedir. Çünkü çelik, geri dönüştürülebilir bir malzeme olduğu için, bu tür yapılarda kullanılan çeliklerin geri dönüşümü mümkündür.






