Tek katlı hafif çelik yapılar, günümüzde inşaat sektöründe en popüler yapı türlerinden biridir. Bu yapılar, hafif, dayanıklı, çevre dostu ve ekonomik olmaları nedeniyle birçok avantaj sunarlar. 194 m² tek katlı hafif çelik yapılar, genellikle küçük aileler veya işletmeler için idealdir. Bu yapılar, çelik profillerin çatı kirişleri, duvar çerçeveleri, kolonlar ve zemin çerçeveleri gibi farklı yapı elemanları kullanılarak inşa edilirler. Bu yapılar, betonarme ya da ahşap yapılarla karşılaştırıldığında daha hızlı bir şekilde inşa edilirler. Ayrıca, hafif çelik yapılar, daha az işçilik gerektirirler, bu nedenle de daha ekonomiktirler.Hafif çelik yapılar, aynı zamanda çevre dostudur. Çünkü, çelik üretimi sırasında sera gazı emisyonu daha azdır. Ayrıca, bu yapılar geri dönüştürülebilir malzemelerden yapılmıştır, bu da atık üretimini azaltır ve çevreye daha az zarar verir. 194 m² tek katlı hafif çelik yapılar, farklı amaçlar için kullanılabilirler. Örneğin, depo, garaj, ofis, mağaza, atölye, spor salonu veya yaşam alanı olarak kullanılabilirler. Bu yapılar, kullanım amacına göre özelleştirilebilir ve farklı tasarımlarla inşa edilebilirler.Hafif çelik yapılar, aynı zamanda dayanıklıdırlar. Çelik, yüksek mukavemetli bir malzemedir ve bu nedenle de hafif çelik yapılar, deprem, yangın, sel ve diğer doğal afetlere karşı daha dayanıklıdırlar. Ayrıca, bu yapılar, çelik kaplama sayesinde paslanmaya karşı da dirençlidirler. Sonuç olarak, 194 m² tek katlı hafif çelik yapılar, günümüzde popüler bir yapı türüdür. Bu yapılar, hafif, dayanıklı, çevre dostu ve ekonomik olmaları nedeniyle, birçok avantaj sunmaktadır. Bu yapılar, farklı amaçlar için kullanılabilirler ve özelleştirilebilirler. Hafif çelik yapılar, gelecekte de yapı sektöründe önemli bir rol oynamaya devam edecektir.
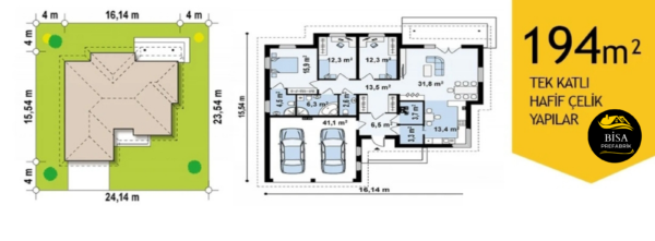
194 M² Tek Katlı Hafif Çelik Yapı
194 m² tek katlı hafif çelik yapılar, modern mimari ve inşaat teknolojileri ile tasarlanan ve inşa edilen bir tür yapıdır. Hafif çelik yapılar, geleneksel inşaat yöntemlerine göre daha hızlı ve ekonomik bir şekilde inşa edilebilirler. Bu tür yapılarda kullanılan çelik çerçeveler, ağır beton veya tuğla gibi geleneksel yapı malzemelerine göre daha hafif olup, kolay taşınabilirler ve hızlı bir şekilde kurulabilirler. Bu özellikleri sayesinde, hafif çelik yapılar inşaat maliyetlerini düşürürken, yapı süresini de kısaltmaktadırlar. 194 m² tek katlı hafif çelik yapılar, ofis, depo, showroom, mağaza, kafe ve hatta konut olarak da kullanılabilirler. Bu tür yapılarda kullanılan malzemeler, dayanıklı ve kaliteli olup, yapıların uzun ömürlü olmasını sağlamaktadır.






