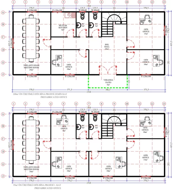
195 m² Prefabrik Dubleks Ofis
195 m² prefabrik dubleks ofis, iki katlı bir ofis binasıdır. Genellikle alt katta birkaç oda ve bir toplantı odası, üst katta ise daha büyük bir toplantı odası ve birkaç oda yer alır. Ayrıca, bir mutfak, tuvalet ve duş da içermektedir. Bu ofisler, daha büyük işletmelerin ihtiyaçlarına uygun olarak tasarlanmıştır.






