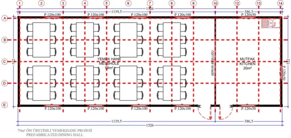
79 m² Prefabrik Yemekhane

79 m² prefabrik yemekhane, önceden üretilmiş ve bir araya getirilmiş modüler yapı elemanlarından oluşan, 79 metrekarelik bir yemekhane yapısıdır. Bu yapılar, genellikle şantiye, işletme, okul gibi yerlerde geçici veya kalıcı olarak kullanılmak üzere tasarlanmıştır. Prefabrik yemekhaneler, hızlı ve kolay kurulumları, ekonomik olmaları ve taşınabilir olmaları nedeniyle tercih edilirler. 79 m²’lik bir prefabrik yemekhane, küçük bir yemekhane ve yanı sıra mutfak, depo ve diğer hizmet alanlarını içerebilir. Bu boyuttaki prefabrik yemekhaneler, 10-20 kişiye kadar yemek servisi yapabilecek kapasiteye sahiptir.

Kategoriler:

79 m² prefabrik yemekhane, küçük ölçekli işletmelerin veya okulların yemekhane ihtiyacını karşılamak için tasarlanmış bir yapıdır. Bu tür prefabrik yapılar, hızlı bir şekilde kurulabilmesi, taşınabilir olması ve maliyet açısından avantajlı olması sebebiyle tercih edilirler. 79 m² prefabrik yemekhane, içerisinde yemek hazırlama ve servis alanları, yemekhane bölümü, yıkama ve temizlik alanları, depolama alanları ve personel odaları gibi birçok bölüm barındırır.Bu yapılar, küçük işletmelerin yemekhane ihtiyaçlarını karşılamak için gerekli tüm alanları sağlar. Prefabrik yemekhaneler, geleneksel yapılarla kıyaslandığında daha hızlı bir şekilde kurulabilmesi sebebiyle işletmelerin faaliyetlerine daha hızlı bir şekilde başlamalarına olanak tanır. Ayrıca, prefabrik yapıların taşınabilir olması, işletmelerin ihtiyaçları değiştiğinde yapıyı kolayca taşıyarak yeniden kullanmalarına olanak tanır.Maliyet açısından da avantajlı olan prefabrik yemekhaneler, geleneksel yapılarla kıyaslandığında daha uygun fiyatlarla satın alınabilirler. Bu yapıların yapım sürecinde kullanılan malzemelerin geri dönüştürülebilir olması, çevre dostu bir seçenek olmalarını sağlar. Sonuç olarak, 79 m² prefabrik yemekhane, küçük işletmelerin veya okulların yemekhane ihtiyaçlarını karşılamak için tasarlanmış bir yapıdır. Hızlı kurulum, taşınabilirlik ve maliyet açısından avantajlı olması sebebiyle, birçok yerde tercih edilmektedir.