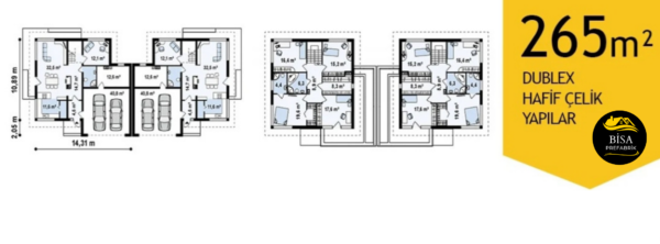
265265 m² çift katlı hafif çelik yapı, günümüzde yaygın olarak kullanılan bir yapı türüdür. Bu yapılar, çelik çerçeve ve panellerin kullanımıyla oluşturulur. Hafif çelik yapılar, düşük maliyetleri, hızlı inşa süreleri ve dayanıklılıkları nedeniyle tercih edilmektedir. 265 m² çift katlı hafif çelik yapı, geniş bir alana sahip olması nedeniyle çeşitli amaçlar için kullanılabilir. Bu tür yapılar, evler, ofisler, depolar, mağazalar ve daha birçok amaç için tercih edilebilir.Hafif çelik yapıların bir diğer avantajı da enerji verimliliğidir. Bu yapıların duvarları, yüksek yoğunluklu yalıtım malzemeleriyle kaplanır ve böylece ısı kaybı minimize edilir. Bu da enerji tasarrufu sağlar ve doğal kaynakların korunmasına yardımcı olur. Ayrıca, hafif çelik yapılar, deprem gibi doğal afetlere karşı da dayanıklıdır. Çelik, yüksek mukavemeti sayesinde bu yapıların depreme karşı dayanıklı olmasına yardımcı olur.Sonuç olarak, 265 m² çift katlı hafif çelik yapı, dayanıklılığı, düşük maliyeti, hızlı inşa süresi ve enerji verimliliği nedeniyle tercih edilen bir yapı türüdür. Bu tür yapılar, çeşitli amaçlar için kullanılabilir ve gelecekte de popülerliğini koruyacağı düşünülmektedir.
265 M² Çift Katlı Hafif Çelik Yapı
265 m² çift katlı hafif çelik yapı, çelik çerçeve ve panellerin kullanımıyla oluşturulan bir yapı türüdür. Bu yapılar, önceden üretilmiş ölçülere göre hazırlanmış panellerin daha sonra inşaat sahasına taşınmasıyla oluşturulur. Çelik çerçeve üzerine monte edilen paneller, yapının tamamlanması için kullanılır. Hafif çelik yapıların düşük maliyetleri, hızlı inşa süreleri, dayanıklılıkları ve enerji verimliliği nedeniyle tercih edilir. Bu tür yapılar, evler, ofisler, depolar, mağazalar ve daha birçok amaç için kullanılabilir. Ayrıca, hafif çelik yapılar, deprem gibi doğal afetlere karşı da dayanıklıdır. Çelik, yüksek mukavemeti sayesinde bu yapıların depreme karşı dayanıklı olmasına yardımcı olur.





