Hafif çelik yapılar, son yıllarda inşaat sektöründe oldukça popüler hale gelmiştir. Bu yapılar, çelik profillerin hafif ve dayanıklı olması nedeniyle tercih edilir. 115 m² çift katlı hafif çelik yapı, bu yapıların örneklerinden biridir. Bu yapı iki katlı bir ev veya ofis binası olarak kullanılabilir. Hafif çelik yapılar, hızlı ve kolay bir şekilde kurulabilir ve genellikle daha düşük maliyetlidir. Bu yapılar, depreme dayanıklı ve yangın gibi afetlere karşı daha dayanıklıdır. Ayrıca, bu yapılar enerji verimliliği açısından da avantaj sağlar.Hafif çelik yapılar, geleneksel yapıların aksine daha çevre dostudur. Yapı malzemeleri geri dönüştürülebilir ve yenilenebilir kaynaklardan sağlanabilir. Bu yapılar, enerji verimliliği açısından da avantajlıdır. Hafif çelik yapılar, daha az enerji tüketir ve bu da enerji tasarrufu sağlar. 115 m² çift katlı hafif çelik yapı, kullanım amacına göre farklı şekillerde tasarlanabilir ve inşa edilebilir. Bu yapılar, birçok avantajı nedeniyle farklı sektörlerde kullanılır.Örneğin, ofisler, fabrikalar, depolar, okullar, sağlık merkezleri ve daha birçok yapı hafif çelik malzemeler kullanılarak inşa edilebilir. Sonuç olarak, hafif çelik yapılar, geleneksel yapıların yerini almaya başlamıştır. Bu yapılar, hızlı, dayanıklı, enerji verimli ve çevre dostu bir alternatiftir. 115 m² çift katlı hafif çelik yapı, bu yapıların örneklerinden biridir ve farklı sektörlerde kullanılmak üzere tasarlanabilir. Bu yapıların kullanımı, inşaat sektöründe bir dönüşüm sağlamış ve gelecekte daha da yaygınlaşması beklenmektedir.
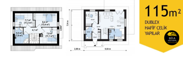
115 M² Çift Katlı Hafif Çelik Yapı
115 m² çift katlı hafif çelik yapı, hafif çelik profillerden yapılmış bir yapıdır. Bu yapı, iki katlı bir ev veya ofis binası olabilir. Hafif çelik yapılar, çelik profillerin hafif ve dayanıklı olması nedeniyle tercih edilir. Bu yapılar, hızlı ve kolay bir şekilde kurulabilir ve genellikle daha düşük maliyetlidir. Hafif çelik yapılar, depreme dayanıklı ve yangın gibi afetlere karşı daha dayanıklıdır. Ayrıca, bu yapılar enerji verimliliği açısından da avantaj sağlar. 115 m² çift katlı hafif çelik yapı, kullanım amacına göre farklı şekillerde tasarlanabilir ve inşa edilebilir.






