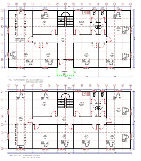
336 m² Prefabrik Dubleks Ofis

336 m² prefabrik dubleks ofis, daha büyük işletmelerin ihtiyaçlarına uygun olarak tasarlanmıştır. Genellikle alt katta birkaç oda ve bir toplantı odası, üst katta ise daha büyük bir toplantı odası ve birkaç oda yer alır. Ayrıca, bir mutfak, tuvalet ve duş da içermektedir. Bu ofisler, büyük ölçekli işletmelerin ihtiyaçlarına uygun olarak tasarlanmıştır.

Kategoriler: