136136 m² çift katlı hafif çelik yapılar, son yıllarda inşaat sektöründe oldukça popüler hale gelmiştir. Bu yapılar, hafif çelik malzemeler kullanılarak inşa edildiği için daha ekonomik ve daha hızlı bir şekilde inşa edilebilmektedir. Ayrıca, hafif çelik yapıların dayanıklılığı ve uzun ömürlü olması da tercih edilme sebepleri arasında yer almaktadır. 136 m² çift katlı hafif çelik yapılar, genellikle orta büyüklükteki ailelerin ihtiyaçlarını karşılamak için tasarlanmaktadır.Bu yapılar, iki katlı olduğu için daha fazla yaşam alanı sunarlar ve ayrıca bahçe veya teras gibi açık alanlara da sahip olabilirler. Hafif çelik yapıların bir diğer avantajı, çevre dostu olmalarıdır. Bu yapılar, doğal kaynakları daha az kullanır ve geri dönüştürülebilir malzemelerden yapıldığı için çevreye daha az zarar verirler. Ayrıca, hafif çelik yapılar, enerji tasarrufu sağlayan yalıtım sistemleri ile donatıldığından, enerji maliyetlerinde de tasarruf sağlarlar.136 m² çift katlı hafif çelik yapılar, ayrıca daha az bakım gerektirirler. Hafif çelik yapılar, paslanmaz ve çürümez, bu nedenle bakım maliyetleri de daha düşüktür. Ayrıca, hafif çelik yapılar, yangın ve deprem gibi doğal afetlere karşı da daha dayanıklıdır. Sonuç olarak, 136 m² çift katlı hafif çelik yapılar, daha hızlı, daha ekonomik, çevre dostu ve daha az bakım gerektiren yapılar olarak öne çıkmaktadır. Bu yapılar, orta büyüklükteki ailelerin ihtiyaçlarını karşılamak için idealdir ve ayrıca enerji tasarrufu sağlayarak çevreye de katkıda bulunurlar.
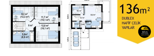
136 M² Çift Katlı Hafif Çelik Yapı
136 m² çift katlı hafif çelik yapı, hafif çelik malzemeler kullanılarak inşa edilen iki katlı bir yapıdır. Bu yapılar, geleneksel yapıların aksine daha hızlı ve daha ekonomik bir şekilde inşa edilebilmekte ve daha dayanıklı ve uzun ömürlü olmaktadır. Hafif çelik yapılar, doğal kaynakları daha az kullanır ve geri dönüştürülebilir malzemelerden yapıldığı için çevre dostudur. Ayrıca, enerji tasarrufu sağlayan yalıtım sistemleri ile donatıldığından, enerji maliyetlerinde de tasarruf sağlamaktadır. 136 m² çift katlı hafif çelik yapılar genellikle orta büyüklükteki ailelerin ihtiyaçlarını karşılamak için tasarlanmaktadır ve ayrıca bahçe veya teras gibi açık alanlara da sahip olabilirler.





